FS-250
Mécanisme pliant pour portails battants
€2.461,20
Prix unitaire
/
Indisponible
sans TVA
avec TVA
Disponibilité en stock
SK Krompachy
9
SK Banská Bystrica
0
SK Bratislava R1
0
SK Senec
0
Contact
Contact
Pour plus d’informations, veuillez contacter notre représentant commercial:
info@umakov.fr
+33646330351
Description
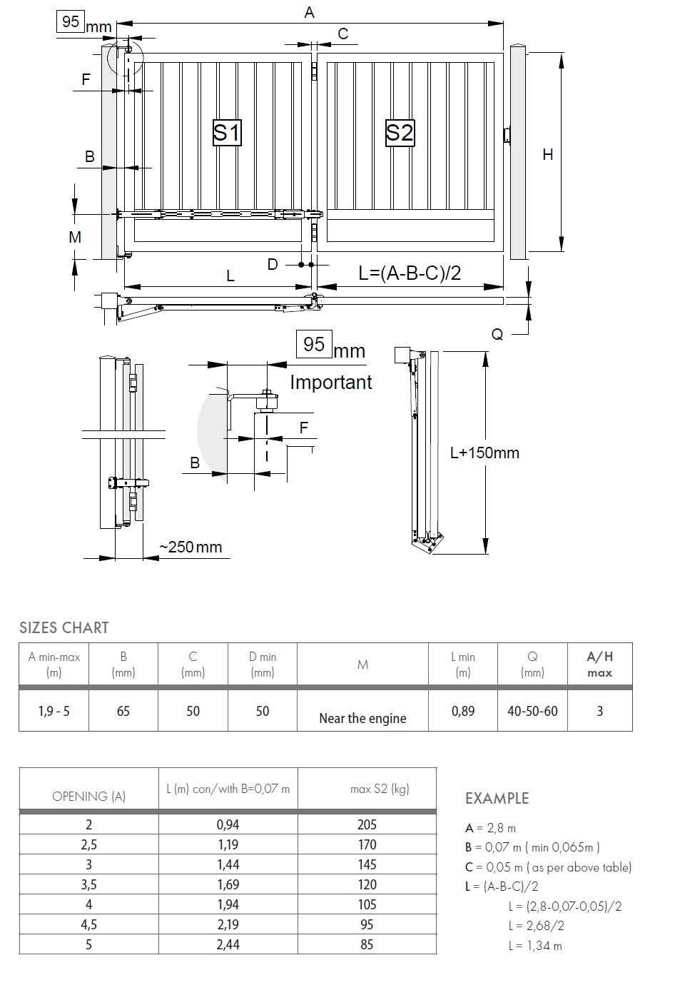
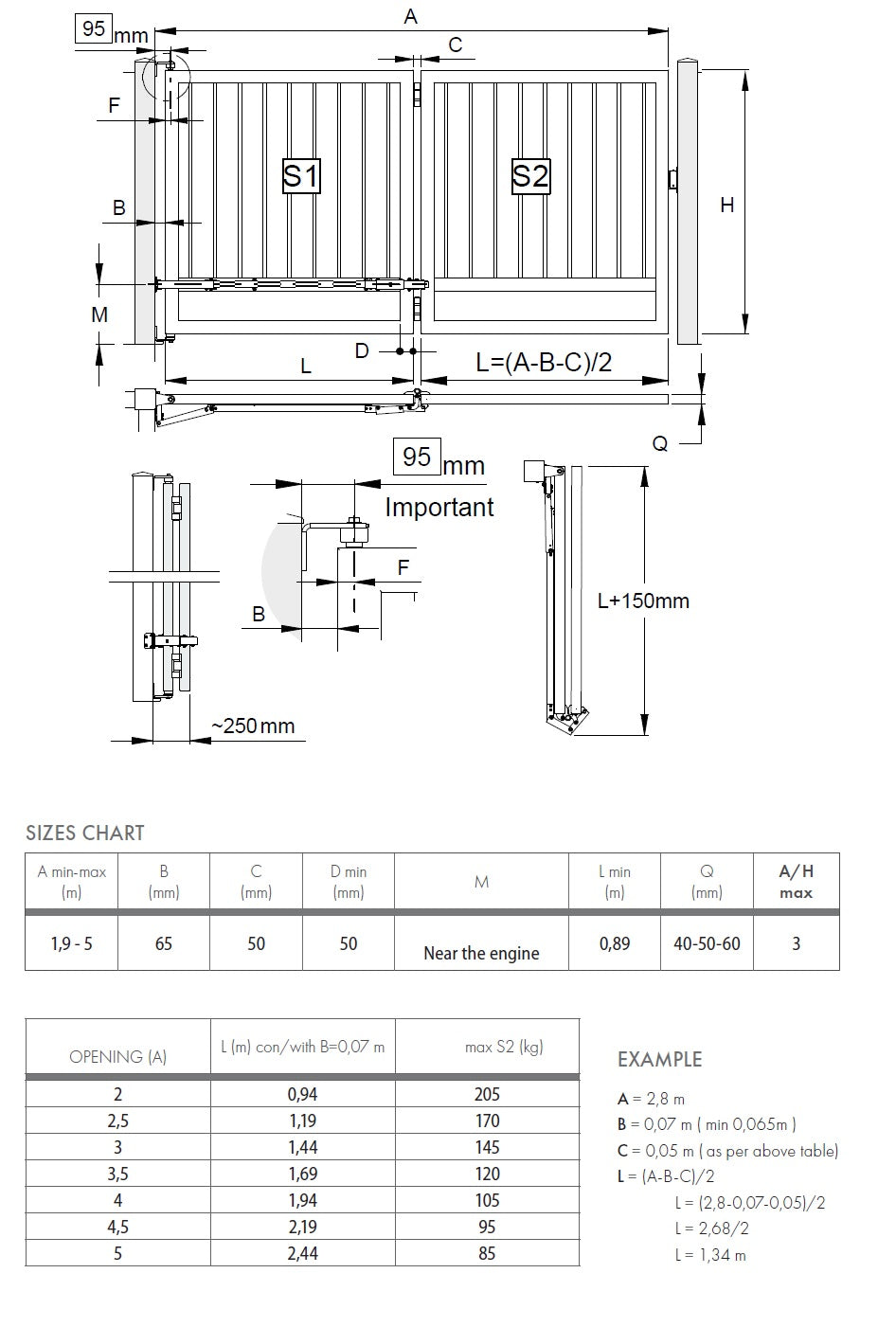
Ensemble complet de mécanisme pour portails a battants. Ce systeme, lorsqu'il est correctement monté, assure le pliage de l'aile du portail, réduisant ainsi la longueur de l'aile lors de l'ouverture. Convient pour les portails a battants avec un espace limité lors de l'ouverture ou en cas de forte pente du terrain. La construction du cadre du portail doit etre adaptée selon les instructions. L'ensemble contient des pieces pour une seule aile. Pour un portail a deux battants, il est nécessaire d'acheter 2 unités. Le mécanisme est adapté pour une longueur totale d'aile de 1,9m a 5m.



