Entraînement CAME pour portails a deux vantaux, kit
Contact
Contact
Pour plus d’informations, veuillez contacter notre représentant commercial:
Description
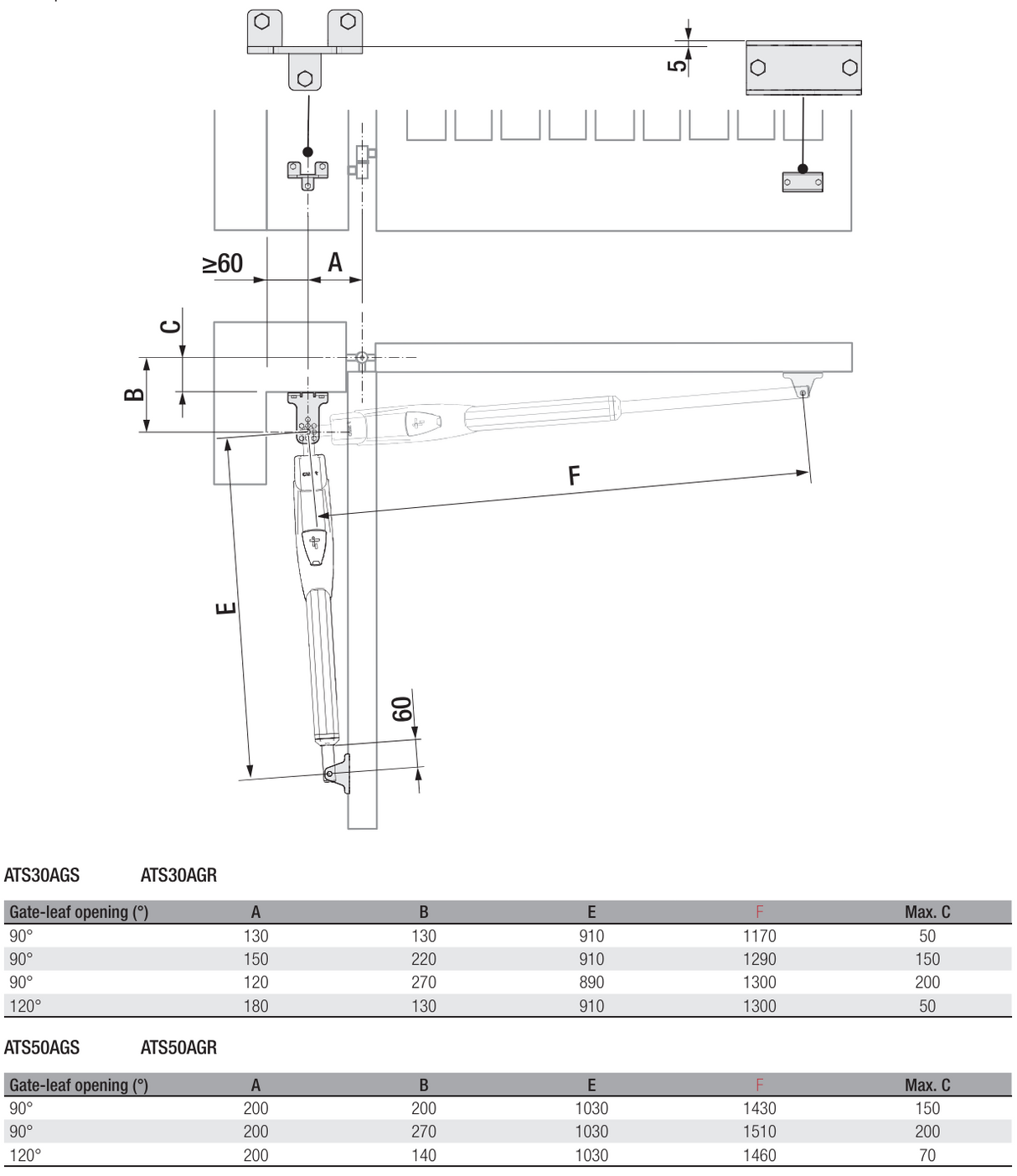
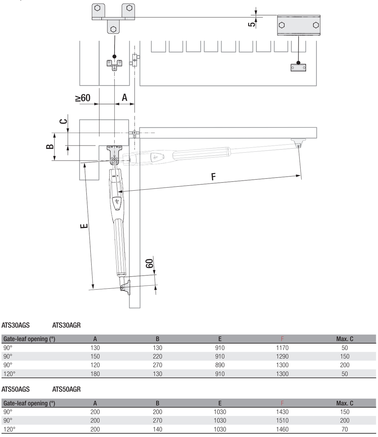
Paramètres
Partie du kit
Motorisation CAME pour portail battant ATS-50-AGS
Armoire avec électronique pour portail a deux battants - fonctions de base ZF-1N
Carte radio 433,9 MHz AF-43-S
Télécommande Came rolling code, 4CH, CAME TOP44RBN
Cellule photoélectrique pour plâtre max. 10m DIR-10


