Came drive for single-leaf gate, set with photocells
Contact
Contact
For more information, please contact our sales:
Description
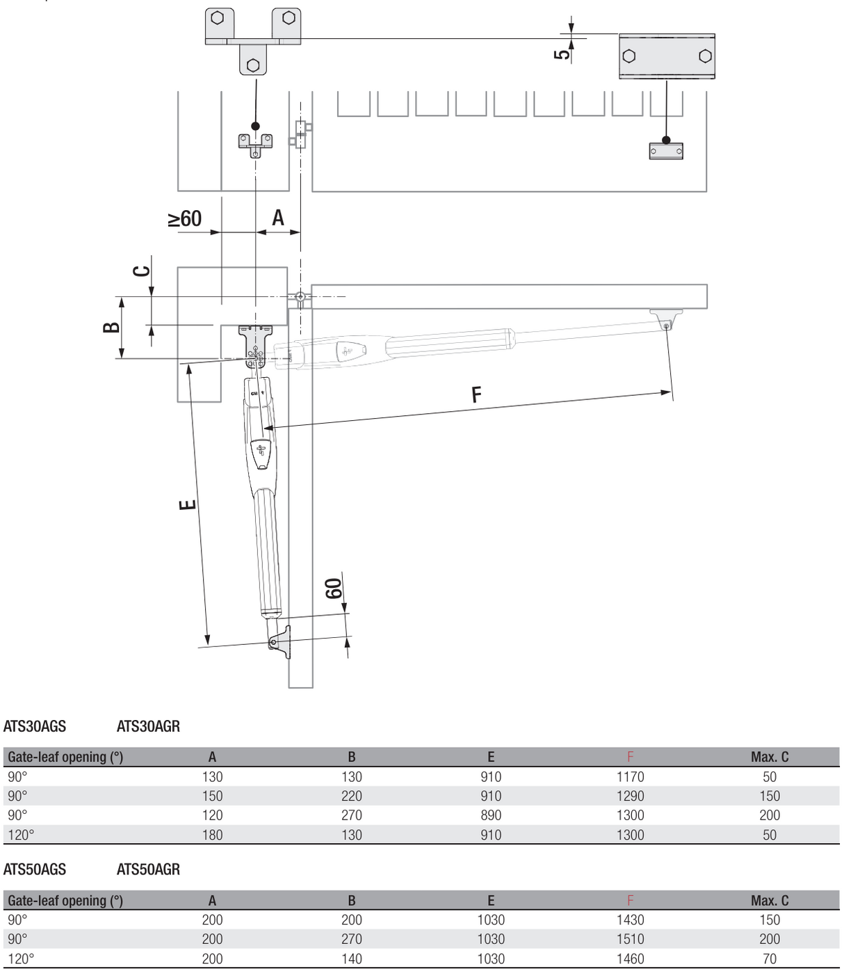
Parameters
Download
Parts of set
CAME drive for swing gates, 24 V DC ATS-30-DGS
Electronics Came for double gate, 24 V DC ZL65
Radio card 433,9 MHz AF-43-S
Remote controller CAME TOP fix code, 2CH, CAME TOP-432-EE
Photocell for plaster montage max. 10m DIR-10



